HAGER Tehalit SL - Möglichkeiten

Das Hager Tehalit SL bietet sich wunderbar für Modernisierungen im Bestand an. In diesen Beispiel zeige ich ein Praxisbeispiel aus einer Wohnungsumnutzung als Multifunktionsbüro. 

Im Jahr 2023 habe ich eine Mietwohnung umgestaltet, um dort 2 Büro's und ein Kinderzimmer zu nutzen. Da ich diese Wohnung nur zu gewissen Tageszeiten nutze, und auch nur Teilbereiche, sollte eine KNX Installation etabliert werden. Da eine Fußbodenheizung ohne Einzelraumregelung vorhanden war, gestalteten sich die Leitungswege als schwierig.

 

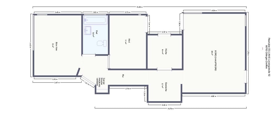
Das obere Bild zeigt den Eingangsbereich der Wohnung. Hier erkennt man, warum die Situation so schwierig war. Im Eingangsbereich sieht man die mittlere Wand mit der Unterverteilung für die Wohnung. Die Zuleitungen kommen von unten in die UV und steigen dann in der Wand in die darüberliegende Wohnung. Hinter der UV liegt das Kinderzimmer, links vom Kinderzimmer das Bad mit wandhohen Fliesen und ebenso rechts vom Kinderzimmer befindet sich die Küche; ebenfalls mit wahndhohen Fliesen.

In der vorderen rechten Nische im Eingangsbereich des Flurs, befindet sich der Heizkreisverteiler. In der hinteren rechten Niesche befindet sich ein Essplatz, weiter im hinteren Bereich das ehemalige Wohnzimer, was als mein Büro umfunktioniert wurde.

 

Links vom Bad befindet sich zur vorderen Gebäudeseite das ehemalige Schlafzimmer, was als Büro und Empfangsraum für meine Sekretärin umgenutzt wird.

 

Zusätzlich zu diesen Räumen gibt es für jede Wohnung einen Kellerraum, einen gemeinschaftlichen Waschraum und der Hauptanschlussraum mit angrenzenden Heizraum.

 

Die Wohnung verfügt auch über eine Doppelgarage im hinteren Gartenbereich. Dazu später mehr.



Grundriss


Wie auf dem obersten Foto und dem Grundriss vermerkt, verlaufen die stromführenden Leitungen von der Unterverteilung in die einzelnen Räume. Zusätzlich ist auch noch ein Stromstoßrelais eingebaut, das über verschiedene Tastwippen im Flur das Licht im Flur schaltet. Vom hinteren ehemaligen Wohnzimmer geht ein 4 adriges Kabel zur Unterverteilung und zu dem Heizkreisverteiler. Dort wurden bisher zwei Ventile für das Wohnzimmer durch einen alten Temperaturschalter im Wohnzimmer mehr oder weniger "geregelt".

Zuerst besprach ich mich mit meinem Elektriker um die Anforderungen festzulegen:

  • Die komplette Wohnung sollte eine KNX Installation bekommen
  • Jedes Zimmer schalt / dimmbares Licht
  • Jedes Zimmer Raumtemperaturregler
  • Einige Zimmer elektrische Rolläden
  • UV umarbeiten / modernisieren
  • Stromstoßrelais gegen Schaltaktor / Dimmaktor tauschen
  • Schaltbare Steckdosen und Netzwerkdosen für alle Räume
  • Heizkreisverteiler in der Nische erhält Heizungsaktor 
  • Serverschrank in Nische über Heizkreisverteiler
  • Leitungswege in die Kellerräume / Waschräume / Hauptanschlussraum / Heizungsraum und Aussenbereich
  • Einhergehend Planung von KNX Linien für das Restgebäude


DOKUMENTATION: Es ist immer wichtig, schon vor als auch nach irgendwelchen Arbeiten stets alles zu Dokumentieren! Ich habe mir angewöhnt, vor Arbeiten ein Aufmaß zu erstellen als auch Unstimmigkeiten etc. aufzuschreiben und zu fotografieren. Ein Raumbuch bei der Planung erleichtert nicht nur die Arbeit für den Planer, sondern auch für den Elektriker und einhergehenden Gewerken.


Rückbau und Auswahl Tehalit SL

Nach der Besprechung wurde zuerst der Rückbau der vorhandenen Fußleisten und Tapeten durchgeführt um zu sehen, ob irgendwo noch Altlasten versteckt waren. Meist ist es so, das Vormieter oder Hausbesitzer irgendwo noch ein Kabel hinter einer Fußleiste durchgezogen haben, ohne das zu dokumentieren.

 

Bei der Auswahl der Tehalit SL Sockelleiste wurde festgehalten:

  • Große 20mm stark und 80mm hoch
  • Verkehrsweiss RAL 9016
  • Geräteträger für Schukosteckdose (2 Stück je Raum)
  • Geräteträger für Schaltaktor (2 Stück je Raum)
  • Geräteträger für Netzwerk (2 Stück je Raum)

 

Aufbau im Sockelleistenkanal

Es wurde festgehalten, das im Sockelleistenkanal die unterste der 3 Kabelführungskanäle für normale Stromleitungen verwendet wird, um in die erwähnten Geräteträger zusätzlich pro Raum 2 schaltbare Steckdosen zu etablieren; und zwar direkt neben 2 zusätzliche Geräteträger mit Netzwerkdosen.

 

Die Netzwerkdosen sollen mit Netzwerkkabel verbunden werden, die in der zweiten Ebene des Kabelkanals verlaufen. Hier passt ein Duplexkabel CAT6a. 

 

Die oberste Ebene des Sockelleistenkanal sollte ein KNX Buskabel enthalten, so dass ich alle Räume damit verbinden kann. 

 

Aufgrund des vorhandenen Steinfußboden mit Fußbodenheizung als auch der Raumhöhe war es nicht möglich, das Kabel anders zu verlegen.



Vorbereitung

Schon vor dem Entfernen der Tapeten habe ich alle Schaltabdeckungen / Steckdosenabdeckungen als auch die Geräteträger entfernt. Bei den Arbeiten sind natürlich die 5 Grundregeln der Spannungsfreiheit etc. zu beachten. Beim Öffnen der Dosen hab ich viele "Altlasten" entdeckt wie Lüsterklemmen etc, die ich natürlich zuerst entfernt und durch Wago Dosenklemmen ersetzt habe. 

 

Ebenso wurden die Schalter und Leitungen im Flur festgestellt, die durch das Stromstoßrelais arbeiteten; und anschließend markiert / gekennzeichnet.

Vorbereitende Schlitzarbeiten

Anschließend wurden in den Räumen Schlitzarbeiten für die KNX Leitungen, die später durch die Sockelleisten führen durchgeführt. Von der obersten Ebene der Sockelleisten sollte in dem Bereich, wo ein Tastsensor in der Wand angebracht wird, nach oben geschlitzt werden. Dies betraf auch die Rolladenaktoren, die neben die Fenster kommen sollten.

 

Bei beiden Arbeiten war größte Vorsicht notwendig, da bei den Stellen, wo die alten Lichtschalter / Steckdosen waren, ja auch die 230V Leitung entlang lief. Wir beschlossen hier etwas unkonventioneller den Leitungsweg zuerst festzustellen und vorsichtigerweise 10cm neben der Leitung einen Schlitz auszustemmen um dann wieder horizontal an die Dose zu kommen.



Problematische Stellen Wandfliesen

Problematische Stellen waren zum Beispiel das Bad als auch die Küche, mit den schon vorhandenen Fliesenspiegeln.

 

Im Bad waren diese raumhoch. ein nachträgliches Stemmen war hier nicht möglich. Jedoch musste ich hier durch. Zum Ersten um im Bad den Rolladen mit Strom zu versorgen, und dann um das daneben liegende Kinderzimmer sowohl mit Netzwerk als auch mit KNX Kabel zu versorgen. 

 

Hier ging ich wie folgt vor:

Ausgehend vom Flur wie auf nebenstehenden Bild zu sehen, lies ich im oberen Eckbereich von der Nische, in der sich der Heizkreisverteiler befindet, in der oberen Ecke zur Decke einen Leitungskanal zum vorderen Büro legen. Von dort aus mit ebenfalls einem Leitungskanal hinter der Tür zum Boden um dort Netzwerk, KNX Buskabel als auch Strom in den Sockelleistenkanal zu führen. Dieser verläuft an der äußeren Wand in Richtung Bad. 

 

Hinter der Tür fällt der Leitungskanal kaum auf, und ich wollte für den Fall der Fälle an die Kabel rankommen können.

 

In der Ecke, an deren Rückseite das Bad anschließt, lies ich wieder zur Decke großzügig hochschlitzen und zur Badseite in den Rolladenkasten durchbohren. Das Gleiche nahm ich auch auf der Rückseite des Bades, im Kinderzimmer vor.

 

Im Bad selbst zog ich die Netzwerk und das Buskabel durch den Rolladenkasten. Das Stromkabel für den elektrischen Antrieb des Rolladens lies ich von der Ecke im vorderen Büro kommen und eine Dose im Büro setzen. Darauf befindet sich ein einfacher Tastsensor. Zum Tastsensor äussere ich mich später. 

 

Die Kabel für Netzwerk und Bus wurden wie schon erwähnt in der mittleren und oberen Ebene des Sockelleistenkanals gezogen. Da im Kinderzimmer ein bodentiefes Fenster das Weiterführen vom Buskabel behindert, lies ich von der Ecke, wo das Buskabel vom Rolladenkasten des Bades kommt, die Leitung zu der Zimmertür weiterführen. Hier montierte ich die Blende der Tür ab, und verlegte im Zwischenraum der Zarge das Buskabel um die Tür herum. Da sich auf der Rückseite die Unterverteilung befand, bohrte ich von der Unterverteilung durch die Wand und schlitzte wiederum auf der Rückwand (Kinderzimmer) zum Sockelleistenkanal runter wo das Kabel schließlich ebenso in den Sockelleistenkanal gelegt wurde.

 

Dadurch konnte ich die Unterverteilung mit Buskabel versorgen. Gleichzeitig hatte ich nun auch die Verbindung vom Sockel zu der angrenzenden Küche. 



Die angrenzende Küche

Da das Buskabel nun auf dieser Seite des Wohnungsflurs verfügbar ist, konnte ich nun das Kabel durch den ebenfalls dort vorhandenen Sockelleistenkanal bis zur Küche ziehen. Ebenfalls lies ich hier von der Aussenseite der Küche / Flurseite neben dem dort vorhandenen Schalter im Abstand hoch schlitzen und vorsichtig zur Dose aufstemmen um das Buskabel in die innenliegende Dose (Küchenseite) zu bringen. Gleichzeitig lies ich in der Küche im Fugenkreuz im Sockelbereich wiederum zur Flurseite bohren, um noch ein Buskabel in den Sockelbereich der Küche zu bringen. 

 

Dieser Bereich des Buskabels, unter dem Küchensockel kommt aus der Überlegung, dort einen Wasserstandssensor einzubauen, der mir erstens einen Alarm bei Austritt von Wasser detektiert / anzeigt und anschließend das Hauptwasser der Wohnung abdreht um Schäden zu vermeiden. Dazu verweise ich auf den Artikel Wasserstandssensoren / Sensorik.

Wiederum vom Sockelbereich der Aussenseite der Küche führte ich das Buskabel erneut in der Zarge der Tür zu dem dahinter angrenzenden großen Büro / meinem Hauptbüro; ebenfalls wiederum in die Sockelleiste.

Hier deutlich zu sehen: Führung des Buskabels zu der Flurdose (die mit dem Stromstoßschalter in der UV verbunden war) und anschließendes Führen des Kabels durch die Dose in die rückwärtige Dose der Küche (Tastsensor) und weiter durch die Türzarge zu dem hinteren Büro.



Hinteres Büro - Wege um die Terrassentüren

Hinteres Büro

Da ich wie vorher beschrieben, um die Tür / durch die Zarge das Buskabel verlegt habe, konnte ich nun auch die linke Wand des Büros mit dem KNX Bus versorgen. Hier waren ebenso Stemmarbeiten in der Wand vorgesehen.

 

Zu den weiteren Installationen wie Türsprechanlage komme ich im Anschluss.

 

Wie schon vorab beschrieben hatte ich hier das Problem mit 2 bodentiefen Fenstern / Terrassentüren. Wie auf dem Bild oben zu erkennen, konnte ich mit dem Buskabel nicht mehr weiter; weder im Sockelbereich, noch über der Tür, weil hier kein Rolladenkasten vorhanden war. Die Tür hat hier ein Oberlicht. Somit kann ich hier mit dem Buskabel nicht weiter.

 

Einbezug des Flur's

Wie ich schon vorher im Artikel beschrieben hatte, wollte ich im Flur in der Nische des Heizkreisverteilers nutzen, um dort einen schallgedämmten Serverschrank an die Wand zu schrauben. Position über dem Heizkreisverteiler.

 

Von dieser Position ausgehend, lies ich Netzwerk, Bus und Stromkabel wie vorab beschrieben durch das vordere Büro / Bad und Kinderzimmer ziehen. Ebenso wie vorab beschrieben den Flur linksseitig mit Unterverteilung, angrenzende Küche und linksseitige hintere Büroseite.

 

Von der Nische des Heizkreisverteilers ausgehend Richtung Essnische im Flur zu dem hinteren Büro sollte nun der Rest der Räume angeschlossen werden.



Restlicher Flur mit Essnische Hinteres Büro und Keller


Einhergehend Installation Netzwerkkabel und Glasfaser u.a.

Wie man auf den Bildern erkennen kann, lies ich sowohl im Deckenbereich einen Kanal bis zur Essnische im Flur montieren. In diesen Kanal lies ich allerdings kein stromführendes Kabel installieren. Warum?

 

Im Keller lies ich im Kellerraum der Wohnung eine neue Elektroinstallation mit zusätzlichen Steckdosen ausführen. Ebenso hatte ich im Vorfeld durch einen alten Schornstein, der hier hinter der Essnische auf der rechten Seite verläuft und nicht mehr genutzt wird, Netzwerkkabel bis unter das Dach ziehen lassen. Durch diesen "Schacht" lies ich nun auch noch ein Duplexkabel vom Kellerraum als auch ein Mono.- und ein Multimodekabel mit genügend Überlänge bis zu dem Heizkreisverteiler der Wohnung ziehen, um von der Decke ausgehend direkt in einen darunterliegenden wandhängenden Serverschrank zu enden.

 

 

Von anderen Bauvorhaben weiß ich, wie schwer es ist, Glasfaserkabel in Bestandsgebäuden zu etablieren. 

 

Hierzu verweise ich auf meinen Artikel über Glasfaserinstallation und Möglichkeiten!

 

Ich wollte dem hier vorgreifen und die Möglichkeit bei einer Modernisierung einer Wohnung nicht ausser Acht lassen. Von der Position des Netzwerkschranks aus kann ich nun sowohl in die benachbarte Wohnung, als auch zu der unteren und den oberen Wohnungen das Glasfaserkabel durchziehen.

 

Ebenfalls lies ich hier noch zusätzlich ein KNX Buskabel vom Kellerraum bis zu dem Serverschrank ziehen. Diese sollte zwar als Reserve dienen, etabliert aber nun eine weitere Linie im Haus, die später zentral die Versorgung der restlichen Heizkreisverteiler übernimmt und auch ein KNX RF Segment betreibt.



Essnische und hinteres Büro

Wie schon vorab dargestellt habe ich von dem Heizkreisverteiler im Sockelbereich dann ebenfalls Netzwerkkabel, Bus und Stromkabel zu der Essnische und dem hinteren Büro gezogen. In der Ecke der Essnische hab ich wie im vorderen Büro als auch im Kinderzimmer je 2 Geräteträger in die Tehalit SL Sockelleiste einbauen lassen um in der Ecke der Essnische und in der rechten Wand des hinteren Büro's je 2 Netzwerksteckdosen als auch 2 schaltbare Steckdosen zu etablieren.

In der rechten Wand des hinteren Büros verläuft zusätzlich natürlich das Buskabel, das zu dem bodentiefen Fenster des hinteren Balkon's geführt wurde. Hier hab ich ebenso verfahren, wie im Bad. Ich lies links und rechts der Tür bis zum Rolladenkasten schlitzen, anschließend quer reinbohren um anschließend Bus und Stromkabel für den Rolladenmotor, als auch Buskabel für das linke Fenster des hinteren Büros ebenso zu installieren, da wie vorab berichtet eine Kabelführung hier nicht möglich war.



Arbeiten - Reihenfolge und Abschließende Arbeiten

Nach den Stemm.- und Fräsarbeiten wurden die Kabel durch die Kabelkanäle und Sockelleisten gezogen um dann in die entsprechenden Dosen sowohl in den Wänden / Rolläden, als auch in die Geräteträger der Sockelleisten installiert zu werden. Anschließend wurden sämtliche Installationen abgeklebt um sie vor den Gips.- und Spachtelmaßnahmen zu schützen.

 

Die Gips.-und Spachtelarbeiten, als auch das anschließende Schleif.- und Streicharbeiten konnten so schnell ausgeführt werden, ohne die vorigen Installationen zu verschmutzen.

Anschließend folgte der Rückbau der Abklebearbeiten und anschließende Reinigung um dann die Abdeckungen der Sockelleisten aufzuklipsen.

 

Die Arbeiten zogen sich in einem Zeitrahmen von gut 2 Arbeitswochen für den Elektriker als auch 2 Wochen für den Gipser hin, da hier ja auch die Trocknung nötig war.

 

Über die weiteren Installationswege und Maßnahmen in dieser Mietswohnung berichte ich bald in einen getrennten Artikel. Dieser befasst sich dann mit den Überlegungen zu ETS / Server etc.



Fazit zu Hager Tehalit SL

Hager Tehalit setze ich nun schon zum zweiten Mal ein und war sehr begeistert von den kurzen Lieferzeiten, der großen Auswahl an Farben (obwohl ich Weiß gewählt habe) und den zusätzlichen Möglichkeiten wie Geräteträger und Zubehör.

 

Die Installation trotz des Umfangs der Schlitz.- und Stemmarbeiten lief sehr flott und blieb auch von den Kosten im Rahmen. Ich hätte ein vielfaches bezahlen müssen, die Wohnung komplett zu entkernen. Bei einer normalen Vermietung habe ich dadurch einen Mehrwert, der mich am Markt besser platziert, weniger Energie kostet und somit die Wohnung attraktiver macht.

Leider dem Zeitdruck auch wegen anderer Modernisierungsmaßnahmen in anderen Häusern geschuldet, erfuhr ich erst später, das es das Tehalit SL auch mit LED Technik gibt...

 

Ich möchte hier nicht jammern; man soll sich auch mal mit dem zufrieden geben, was man hat. Allerdings könnt Ihr Euch das auch mal anschauen, denn ich find das schon sehr schick, wenn man z.B. Flure beleuchten muss; oder wenn es um Nachrüstungen von Fluchtwegen geht. Untenstehender Button verlinkt direkt zur Produktseite.



Zusätzliches

Mein zusätzlicher Dank geht an die Firma Elektro Bartruff, mit der ich schon seit über 15 Jahre zusammenarbeite. Trotz der Tatsache, das wir gerade in den Jahren 2020-2023 mehr als 20 Wohneinheiten modernisiert hatten, ging diese Vorhaben sehr schnell von Statten. 

 

Ebenso möchte ich meinen Mentor, Herrn Michael Augustin, Elektromeister der Firma Bartruff danken, der mich bei der Planung unterstützt hat und mit manch "pfiffigen Einfall" weitere Kosten vermieden hat.

Nachfolgend auch der Link zur Firma Bartruff, wenn Ihr mal einen guten Elektriker im Saarland braucht. 



Ebenso möchte ich auf zusätzliche und auch in kürze erscheinende Artikel aufmerksam machen, die mit der Modernisierung des Multifunktionsbüros einher gehen. Hier gehe ich auf die Themen Beleuchtung, Heizung, Planung der ETS etc. ein. Ebenso wird hier das Thema der alten Installation anhand von z.B. dem alten Raumtermostat als auch der Sprechgarnitur aufgenommen, welche ich einer anderen oder erweiterten Anwendung zuführe.

 

 


Impressionen